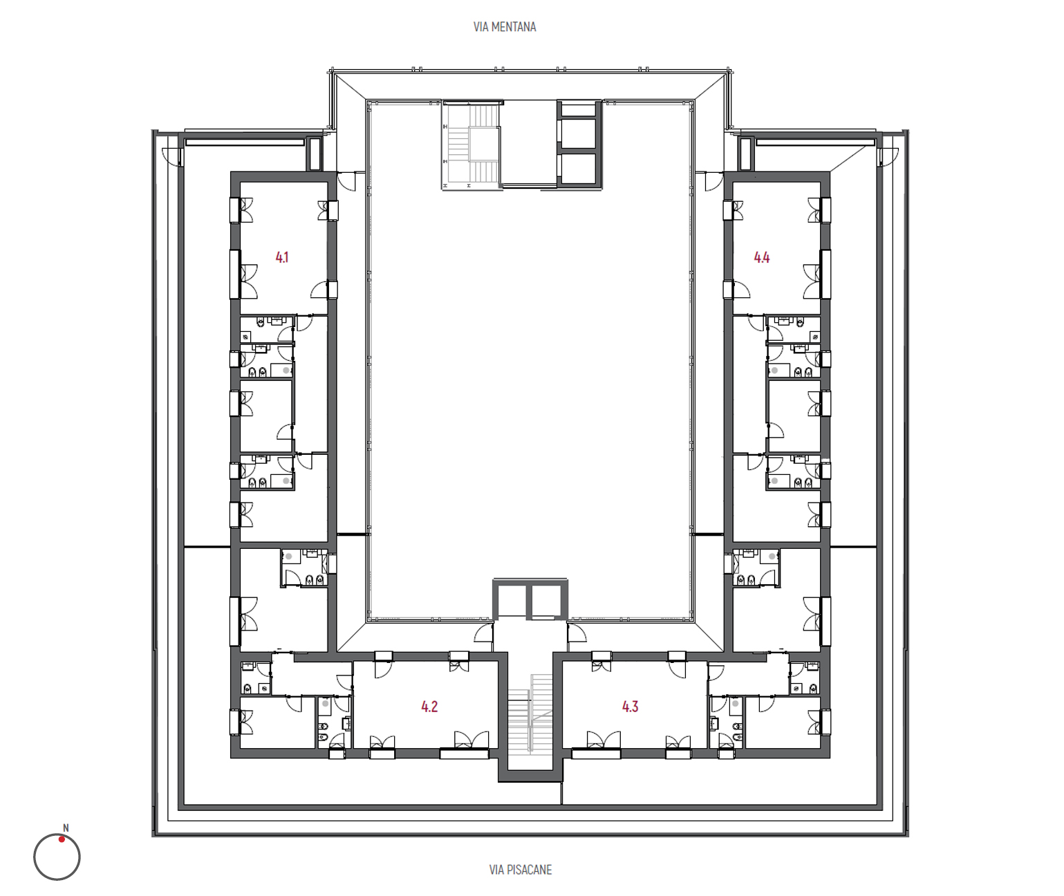
Quarto piano
Terzo piano
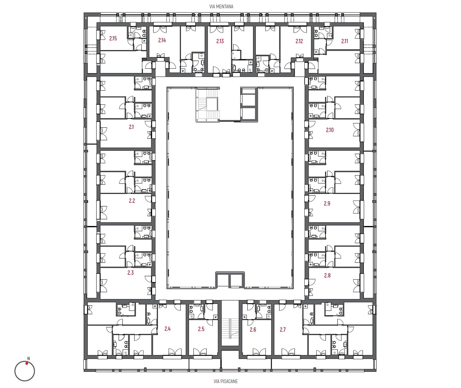
Secondo piano
Primo piano
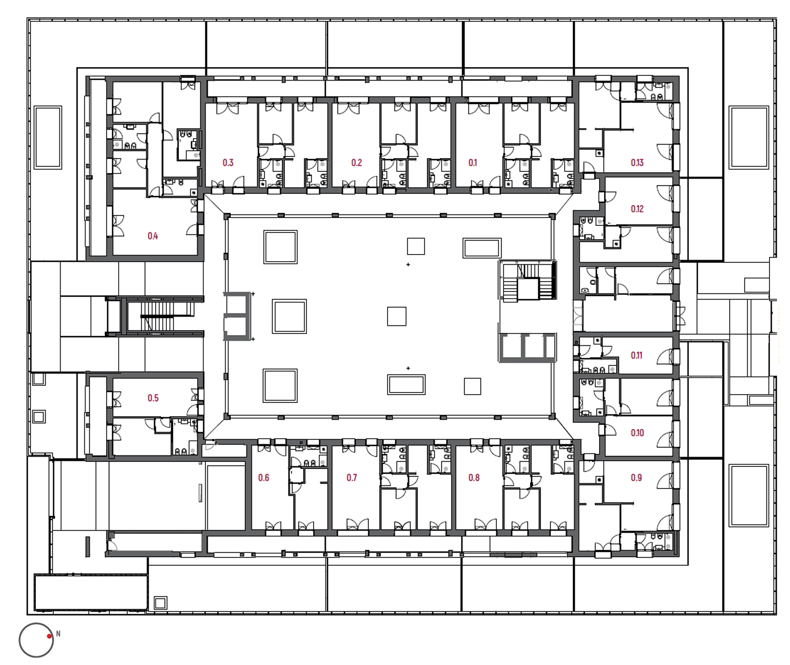
Piano terra
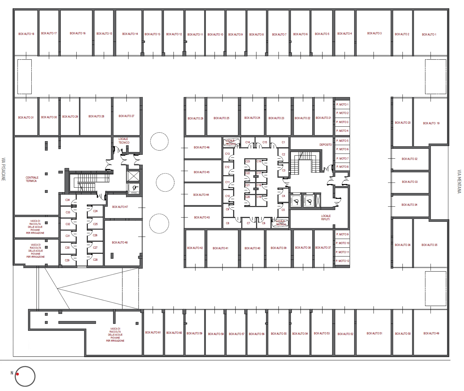
Piano interrato
Fullscreen Overlay
Scopri le planimetrie